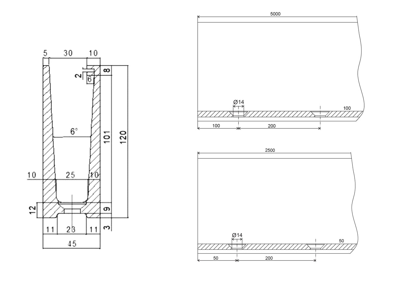
Perfil de aluminio para vidrio - fijación desde arriba / 2,5 m NEGRO
Descripción del producto
- Perfil de aluminio montado en el suelo
- Perfil con sección transversal de 120x45 mm
- Superficie - LACADO EN POLVO RAL 9005 MATE
- Material: aluminio
- Posibilidad de montar vidrio con un espesor de 12 mm a 21,52 mm в‡’ GOMAS Y JUNTAS
- Número de orificios de montaje:
- Barra de 2,5 metros - 13 orificios
- Barra de 5,0 metros - 25 orificios
В
В
